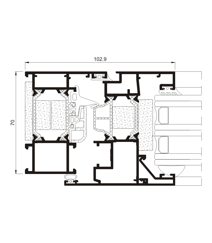
COR 70 C16 ST TB
Sistema abisagrado de 70 mm de profundidad de marco compatible con cualquier herraje de canal 16 estándar. Presenta una rotura de puente térmico de 35 mm en marco y 30 mm en hoja, ofreciendo un gran rendimiento térmico y acústico.
Posibilidades
- Herraje de seguridad
- Herraje oculto
- Drenaje oculto
- Accesibilidad
Datos técnicos
Máx.: 55 mm
Mín.: 15 mm
Apertura interior
Practicable
Oscilobatiente
Osciloparalela
Abatible
Plegable
Apertura exterior
Practicable (puerta)
Marco: 70 mm
Hoja: 78 mm
Ventana: 1,5 mm
Puerta: 1,7 mm
Marco 35 mm
Hoja 30 mm
Ancho (L): 1500 mm
Alto (H): 2600 mm
150 Kg
Hoja: recta / Junquillo: recto y curvo
Posibilidad bicolor
Lacado colores (RAL, moteados y rugosos)
Lacado imitación madera
Lacado antibacteriano
Anodizado
Transmitancia: Uw ≥ 0,9 (W/m²K)
Aislamiento acústico: Rw hasta 46 dB
Permeabilidad al aire: Clase 4
Estanqueidad al agua: Clase E1500
Resistencia al viento: Clase C5
Certificación DTA de laboratorio CSTB: Avis technique - Ref. 6/17-2363





