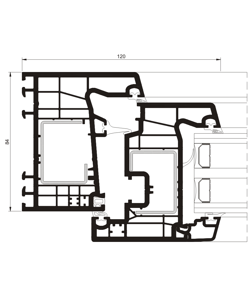
A 84 Abisagrada
Sistema abisagrado de 70 mm de profundidad de marco compatible con cualquier herraje de canal 16 estándar. Presenta una rotura de puente térmico de 35 mm en marco y 30 mm en hoja, ofreciendo un gran rendimiento térmico y acústico.
Posibilidades
- Herraje de seguridad
- Herraje oculto
- Drenaje oculto
- Accesibilidad
Datos técnicos
Máx.: 54 mm
Mín.: 18 mm
Apertura interior
Practicable
Oscilobatiente
Osciloparalela
Abatible
Apertura exterior
Practicable (puerta)
Marco: 84 mm
Hoja: 84 mm
Ventana
Ancho (L): 450-1400 mm
Alto (H): 450-2200 mm
Balconera
Ancho (L): 450-1400 mm
Alto (H): 600-2500 mm
Puerta
Ancho (L): 700-1300 mm
Alto (H): 600-2500 mm
Ventana / Balconera: 130 Kg
Puerta: 160 Kg
Hoja: recta / Junquillo: recto o curvo
Consultar peso y dimensiones máximas según tipología
Blanco
Color
Bicolor
Imitación madera
Metalizado
Transmitancia: Uf ≥ 1,16 (W/m²K)
Aislamiento acústico: Rw hasta 46 dB
Permeabilidad al aire: (UNE-EN 12207) Clase 4
Estanqueidad al agua: (UNE-EN 12208) Clase E1500
Resistencia al viento: (UNE-EN 12210) Clase C5





