COR 3500 C16 ST RPT

logo-cortizo
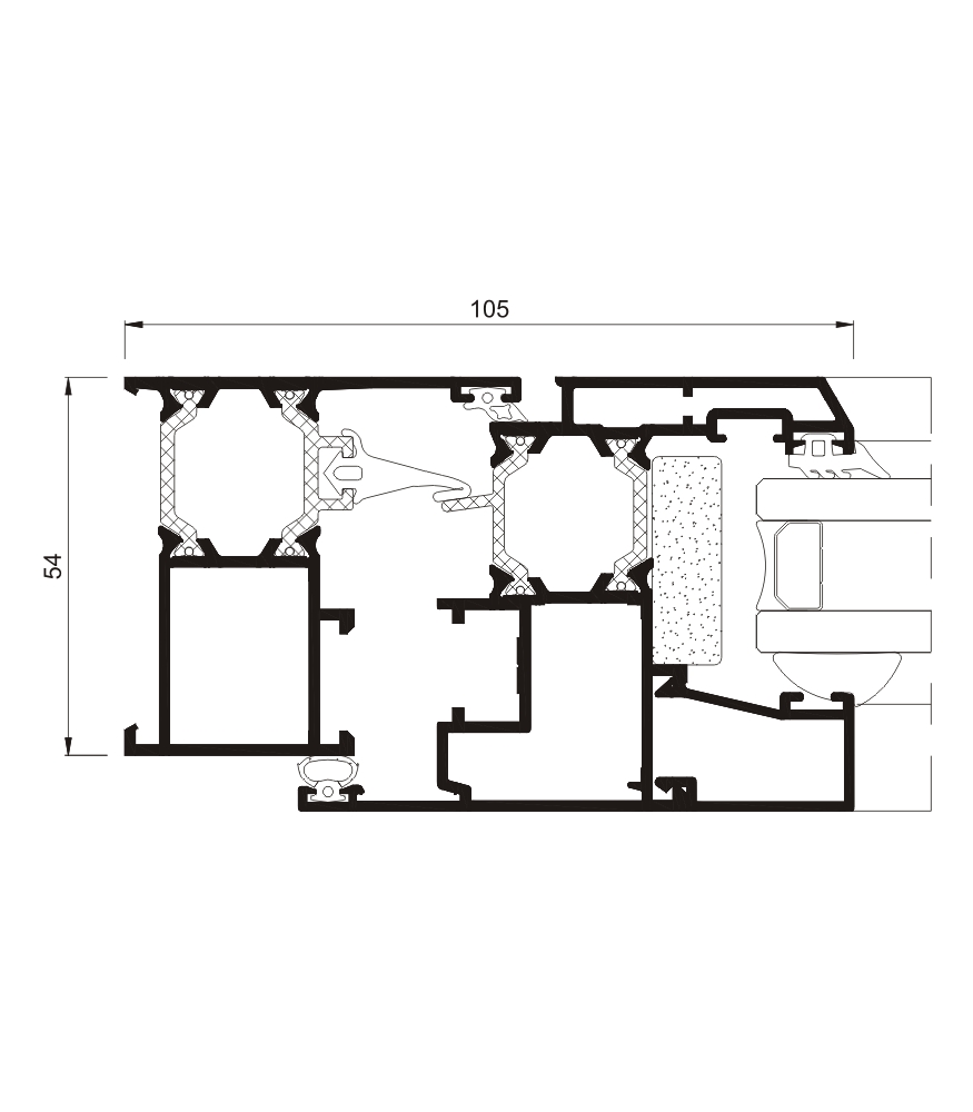
Este sistema abatible, con una profundidad de marco de 54 mm y una rotura de puente térmico de 24 mm, es compatible con cualquier herraje de canal estándar de 16 mm disponible en el mercado, lo que lo convierte en una opción flexible y adecuada para climas templados. Posibilidades
  • Herraje de seguridad
  • Herraje oculto
  • Accesibilidad

Datos técnicos

Máx.: 32 mm

Mín.: 27 mm

Apertura interior

Practicable

Oscilobatiente

Plegable

Osciloparalela

Abatible

Apertura exterior

Practicable

Proyectante deslizante

Pivotante oculta de eje horizontal y vertical

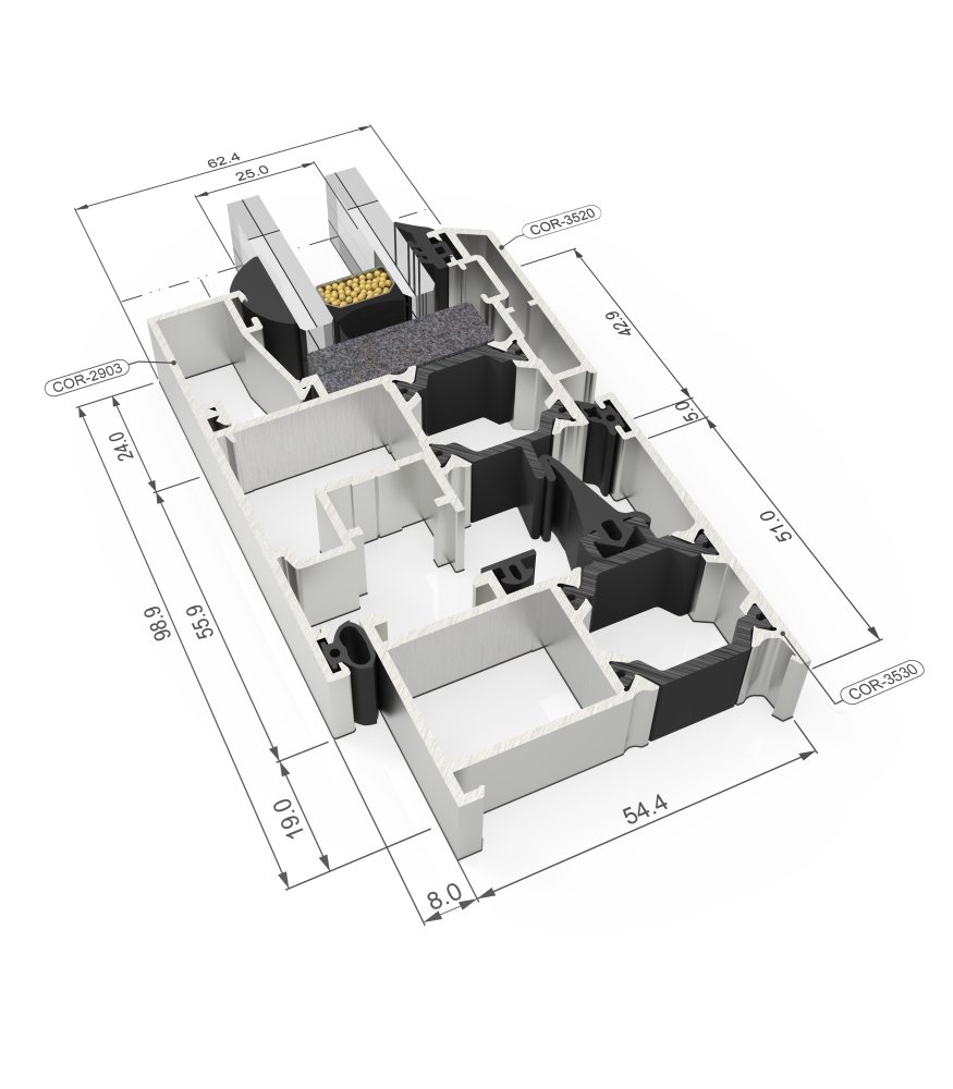
Marco: 54 mm

Hoja: 62 mm

Ventana: 1,5 mm

Puerta: 1,7 mm

Longitud: 24 mm

Ancho (L): 1500 mm

Alto (H): 2600 mm

Peso máx. hoja: 120 Kg

Posibilidad bicolor

Lacado colores: (RAL, moteados y rugosos)

Lacado imitación madera

Lacado antibacteriano

Anodizado

Transmitancia: Uw ≥ 1,2 (W/m²K)

Aislamiento acústico: Rw hasta 46 dB

Permeabilidad al aire: (UNE-EN 12207) Clase 4

Estanqueidad al agua: (UNE-EN 12208) Clase 9A

Resistencia al viento: (UNE-EN 12210) Clase C4

Hoja: curva o achaflanada

Junquillo: recto o curvo

Nuestros trabajos